Arquitectura i Desenvolupament
El 1965, el complex va ser ampliat i ordenat urbanístic per l’arquitecte Lluís Domènech Torres i el seu equip, estructurant-se en mòduls habitacionals, zones verdes i àrees comunitàries per oferir condicions dignes de vida als joves acollits. Aquest pla va consolidar la colònia com un referent de planificació moderna vinculada a la funció social.El 1965, el complex va ser ampliat i ordenat urbanístic per l’arquitecte Lluís Domènech Torres i el seu equip, estructurant-se en mòduls habitacionals, zones verdes i àrees comunitàries per oferir condicions dignes de vida als joves acollits. Aquest pla va consolidar la colònia com un referent de planificació moderna vinculada a la funció social.

AUTORS
Lluís Domènech i Girbau Ramon Maria Puig i Andreu Laureà Sabater i Andreu Jaume Sanmartí Verdaguer
Memòria
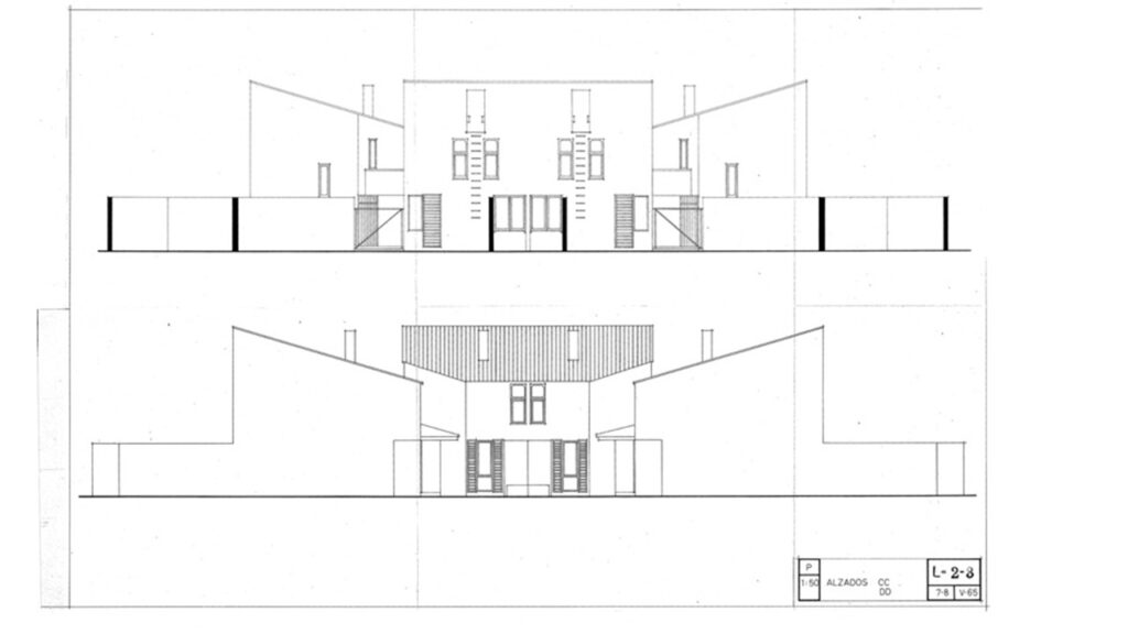
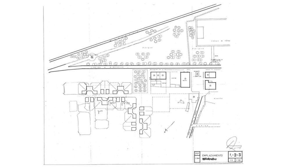
Es tracta d’una agrupació de sis habitatges situats enmig d’uns terrenys agrícoles, per ser habitats pels treballadors del camp. El projecte pren en consideració les formes d’agrupació de les construccions rurals, per la qual cosa forma agregats de volums de petites dimensions i evita la presència distorsionadora de les grans masses. Els habitatges s’agrupen de dos en dos constituint un esquema en T, de manera que al centre queda un espai semitancat que funciona com a espai de relació i com a punt d’accés a cada habitatge. Les construccions, de planta baixa més pis, adopten unes cantonades en bisell per reduir l’impacte volumètric dels cossos construïts. Les plantes primeres, destinades als dormitoris, agrupen cada paquet de dues plantes baixes, deixant uns passos coberts que permeten l’accés al jardí de cada habitatge. Els bisells, la col·locació de les obertures i les difraccions entre les plantes baixes i les plantes primeres tendeixen a fragmentar considerablement els volums i a evitar els panys de paret de grans dimensions. El conjunt forma un nucli construït a l’escala del paisatge de l’entorn i en consonància amb les tasques agrícoles a les quals serveix.
Autor : Maurici Pla
Font : Catalunya : guia d’arquitectura moderna, 1880-2007




